会员中心
智能搜索
网站首页
首页
走进清河
政务公开
互动交流
信息公开
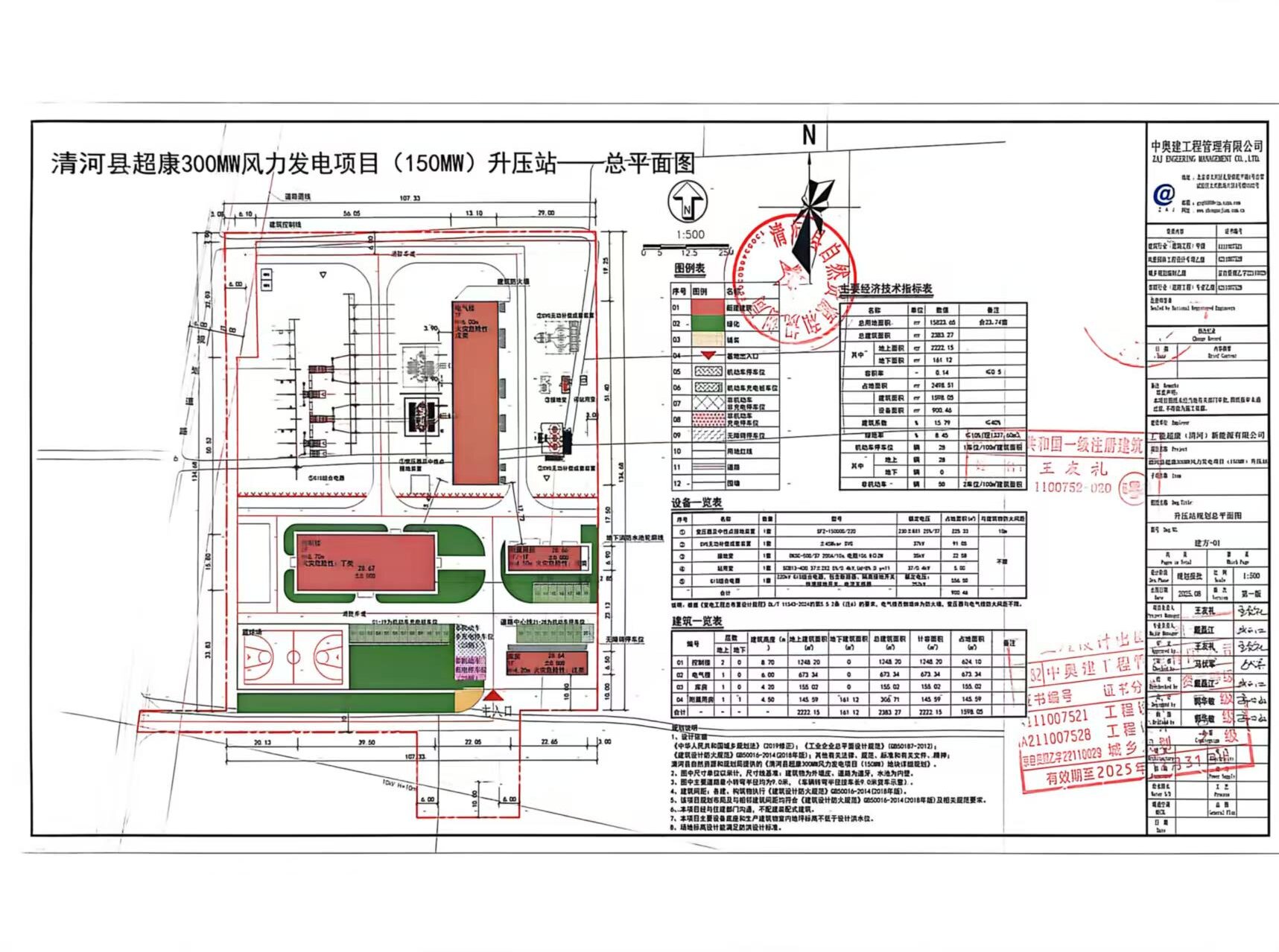
清河县超康300MW风力发电项目(150MW)升压站规划设计方案总平面图审定后公布
体裁分类:公告公示 主题分类:国土资源、能源 发布时间: 2025-11-27 发布机构:自然资源和规划局 浏览次数:37 字体:[
大
中
小
]
超康.jpg